Проект дома, с. Оленевка, в районе ул. Елисеева

Проект дома, с. Оленевка, в районе ул. Елисеева



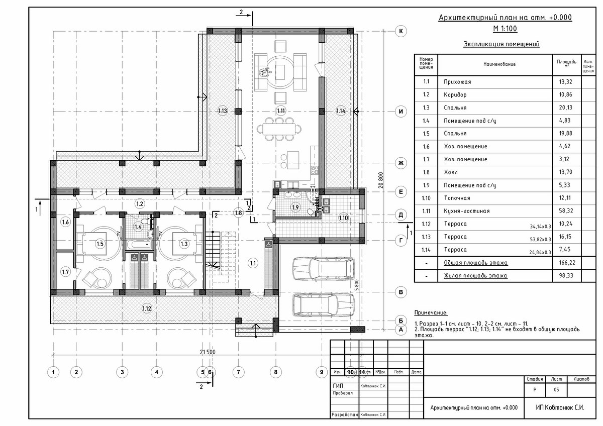
Проектная группа Симферополя ИНстрой представляет проект двухэтажного жилого дома, в современном стиле хай-тек с плоской крышей, 22 на 21 для строительства в с. Оленевка, в районе ул. Елисеева. Каркасно-каменный монолитный каркас. Несущие наружные стены из известняка-ракушечника. Перегородки - газобетонные блоки, монолитные перекрытия, ленточный монолитный фундамент. Кровля - плоская, ПВХ мембрана. Рассчитан на сейсмичность 7 баллов.

Наверх