Проект дома, Симферопольский р-н, Перовский с/с, ОК СТ "Надежда", ул. Виноградная

Проект дома, Симферопольский р-н, Перовский с/с, ОК СТ "Надежда", ул. Виноградная



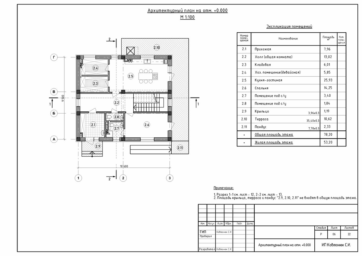
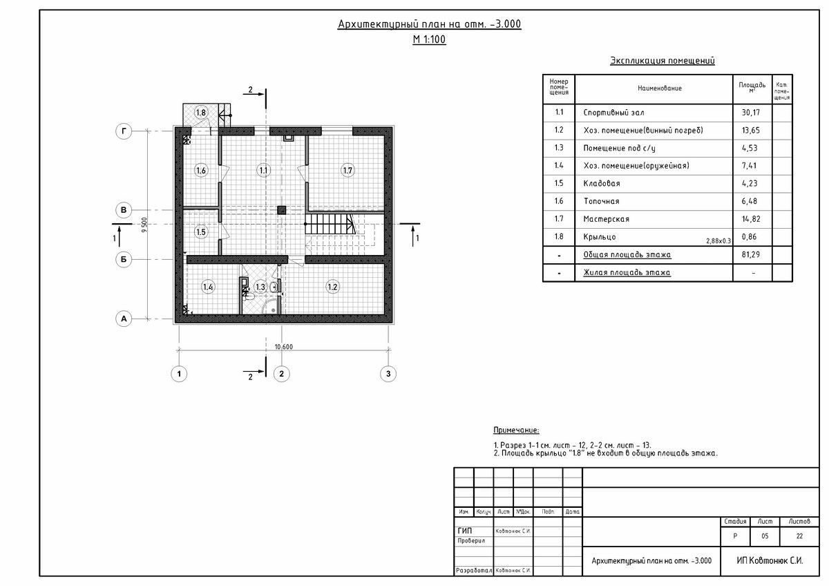
Проектная группа Симферополя ИНстрой представляет проект трехэтажного жилого дома, в современном стиле хай-тек с плоской крышей, 10 на 11 для строительства в Симферопольском р-не, Перовский с/с, ОК СТ "Надежда", ул. Виноградная. Каркасно-каменный монолитный каркас. Несущие наружные стены из известняка-ракушечника. Перегородки - газобетонные блоки, монолитные перекрытия, монолитная фундаментая плита. Кровля - плоская, ПВХ мембрана. Рассчитан на сейсмичность 7 баллов.

Наверх