Проект дома, г. Алушта, с. Нижняя Кутузовка, ул. Троицкая.

Проект дома, г. Алушта, с. Нижняя Кутузовка, ул. Троицкая.



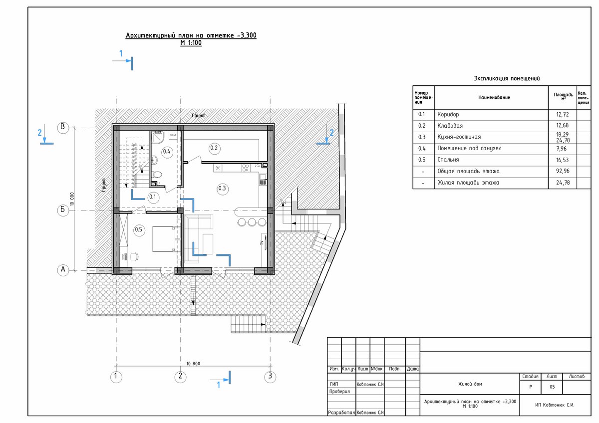
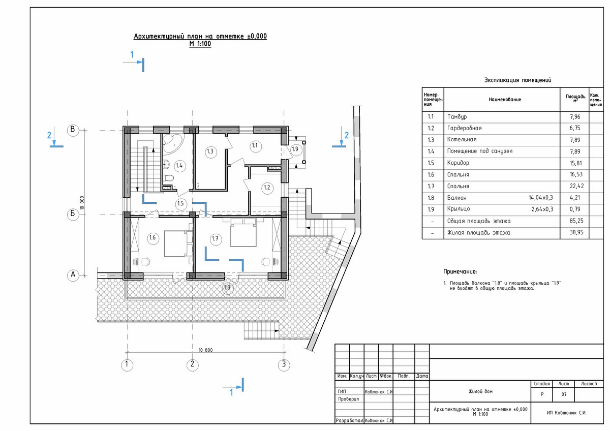
Проектная группа Симферополя ИНстрой представляет проект двухэтажного жилого дома 11 на 11 м., 180 м2 для строительства в г. Алушта, с. Нижняя Кутузовка, ул. Троицкая. Каркасно-каменный монолитный каркас. Несущие наружные стены из известняка-ракушечника. Перегородки - газобетонные блоки, монолитные перекрытия, монолитная фундаментая плита. Кровля - металлочерепица. Рассчитан на сейсмичность 8 баллов.

Наверх