Проект дома, Симферопольский р-н, с. Лозовое, ул. Подгорная

Проект дома, Симферопольский р-н, с. Лозовое, ул. Подгорная



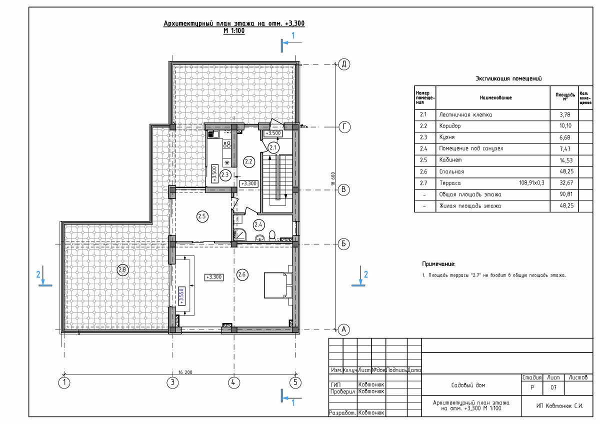
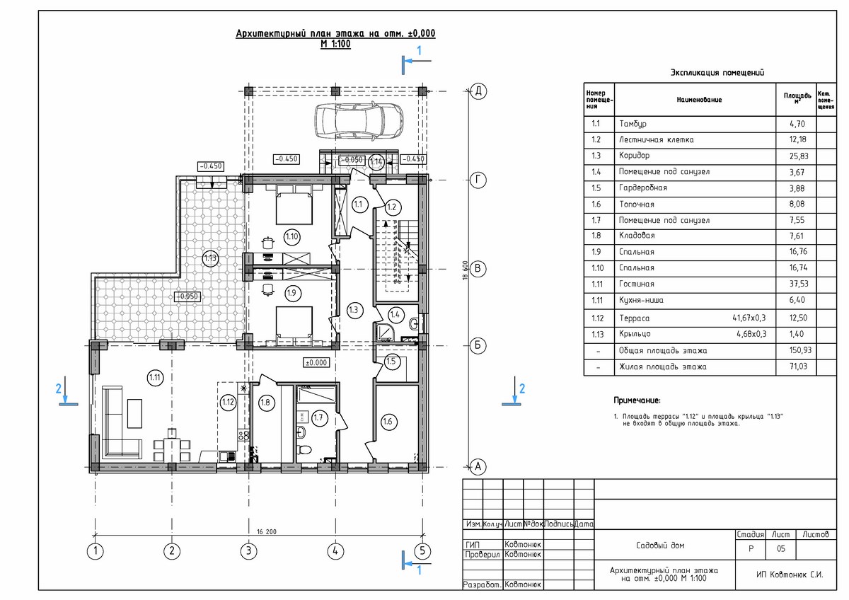
Проектная группа Симферополя ИНстрой представляет проект двухэтажного жилого дома, в современном стиле хай-тек с плоской крышей, 18 на 16 м., 242 м2 для строительства в Симферопольском р-не, с. Лозовое, ул. Подгорная. Каркасно-каменный монолитный каркас. Несущие наружные стены из известняка-ракушечника. Перегородки - газобетонные блоки, монолитные перекрытия, монолитные ленточные фундаменты. Кровля - плоская, ПВХ мембрана. Рассчитан на сейсмичность 8 баллов.

Наверх