Проект дома, с. Краснолесье, ул. Лиловая, Симферопольский район.

Проект дома, с. Краснолесье, ул. Лиловая, Симферопольский район.



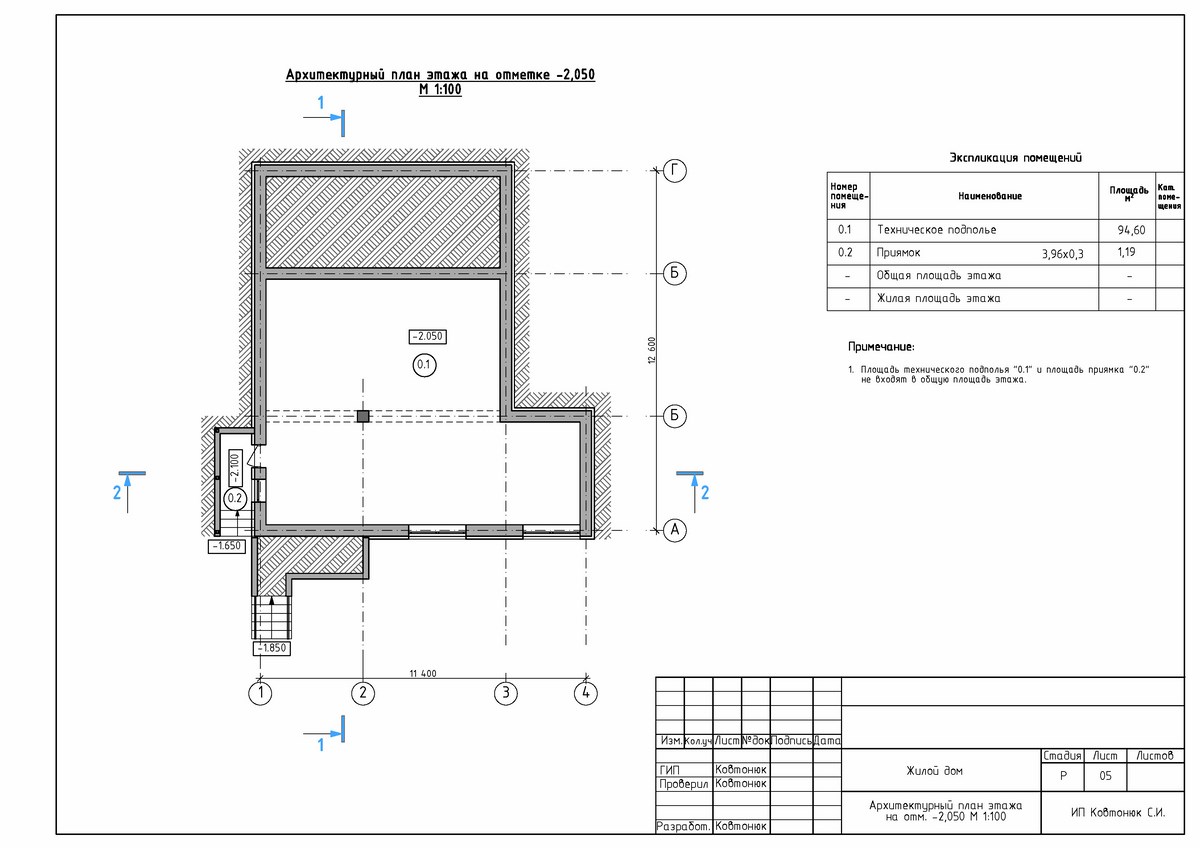
Компания Симферополя ИНстрой представляет проект одноэтажного дома 12 на 13 м, 104 м2. для строительства в с. Краснолесье, ул. Лиловая, Симферопольский район. Каркасно-каменный монолитный каркас. Несущие наружные стены из известняка-ракушечника. Перегородки - газобетонные блоки, ленточный монолитный фундамент. Кровля - керамическая черепица. Рассчитан на сейсмичность 8 баллов.

Наверх