Проект дома, г. Ялта, п. Даниловка, ул. Тенистая

Проект дома, г. Ялта, п. Даниловка, ул. Тенистая



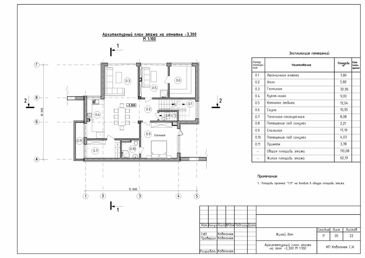
Проектная группа Симферополя ИНстрой представляет проект двухэтажного жилого дома, в современном стиле минимализм с плоской крышей, 11 на 13м., 219 м2 для строительства в г. Ялта, п. Даниловка, ул. Тенистая. Рамный монолитный каркас, с сомонесущими наружными стененами из газобетона 300мм.. Перегородки - газобетонные блоки, монолитные перекрытия, монолитная фундаментная плита. Кровля - плоская, ПВХ мембрана. Рассчитан на сейсмичность 8 баллов.

Наверх