Проект дома, г. Ялта, пгт. Ливадия, п. Горное

Проект дома, г. Ялта, пгт. Ливадия, п. Горное



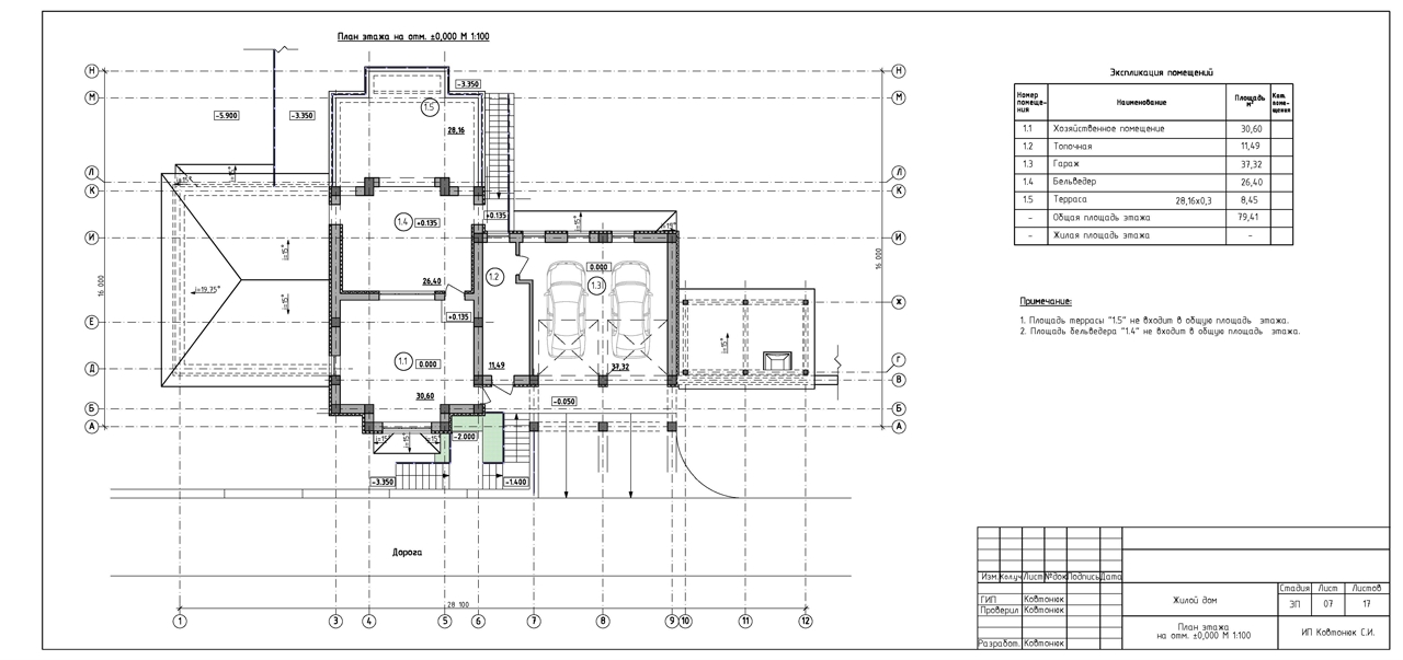
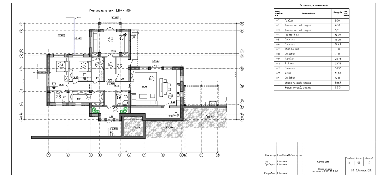
Компания Симферополя ИНстрой представляет проект двухэтажного дома, в средиземноморском стиле, размером 16 на 22 м, 280 м2. для строительства в г. Ялта, пгт. Ливадия, п. Горное. Каркасно-каменный монолитный каркас. Несущие наружные стены из известняка-ракушечника. Перегородки - газобетонные блоки, монолитная фундаментная плита. Кровля - керамическая черепица. Рассчитан на сейсмичность 8 баллов.

Наверх