Проект дома, в г. Симферополь, ул. Апрельская

Проект дома, в г. Симферополь, ул. Апрельская



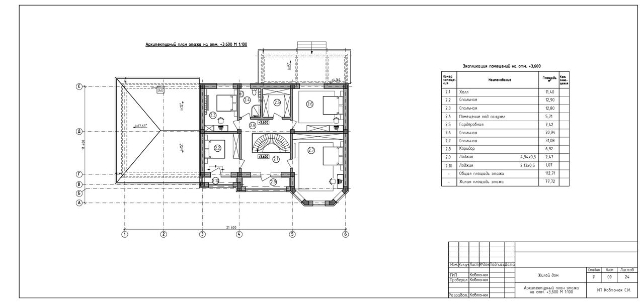
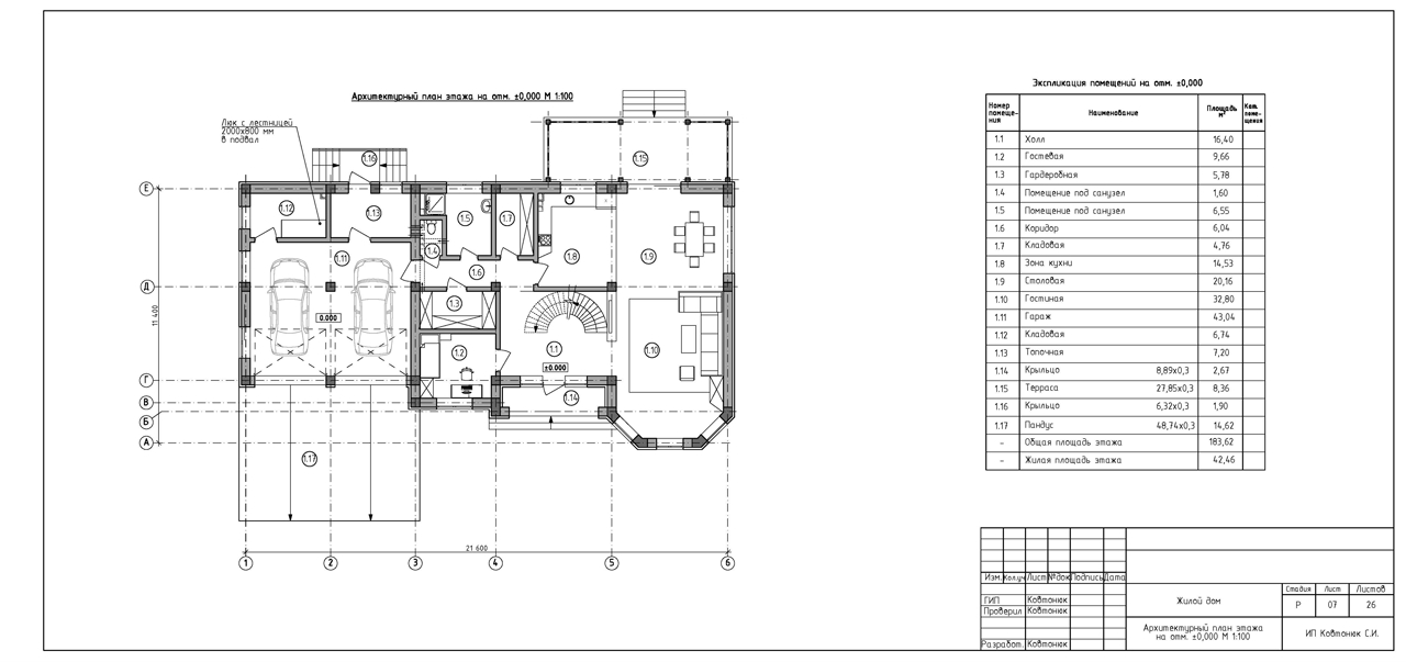
Компания Симферополя ИНстрой представляет проект двухэтажного дома, в классическом стиле, размером 12 на 22 м, 324 м2. для строительства в г. Симферополь, ул. Апрельская. Каркасно-каменный монолитный каркас. Несущие наружные стены из известняка-ракушечника. Перегородки - газобетонные блоки, ленточный монолитный фундамент. Кровля - керамическая черепица. Рассчитан на сейсмичность 7 баллов.

Наверх