Проект дома, Симферопольский р-н, с. Водное

Проект дома, Симферопольский р-н, с. Водное



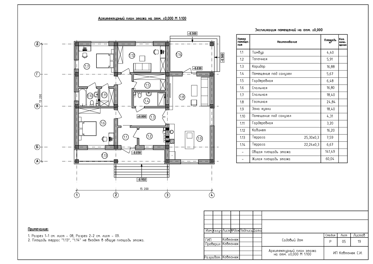
Компания Симферополя ИНстрой представляет проект одноэтажного дома 16 на 14 м, 140 м2. для строительства в с. Водное, Симферопольский район. Каркасно-каменный монолитный каркас. Несущие наружные стены из известняка-ракушечника. Перегородки - из известняка-ракушечника, ленточный монолитный фундамент. Кровля - битумная черепица. Рассчитан на сейсмичность 7 баллов.

Наверх