Проект афрейм домов, г. Алушта, пос. Семидворье

Проект афрейм домов, г. Алушта, пос. Семидворье



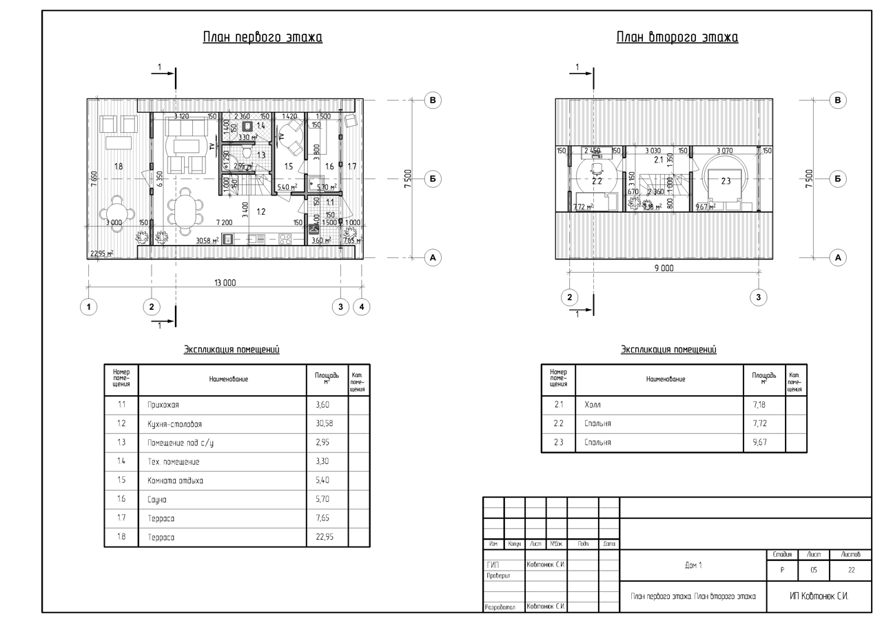
Проектная группа Симферополя ИНстрой представляет проект двухэтажного жилого дома, в современном стиле афрейм, 7,5 на 13 м., 107 м2 для строительства в г. Алушта, пос. Семидворье. Весь конструктивный пиломатериал, используемый для изготовления продукции, сухой строганный, обработанный огне-биозащитными составом. Кровля - Клик фальц, цвет серый графит. 16. Фундамент - Свайный (количество свай – 35 шт., в том числе под террасу). Рассчитан на сейсмичность 8 баллов.

Наверх