Проект дома, г. Симферополь, Марьино.

Проект дома, г. Симферополь, Марьино.



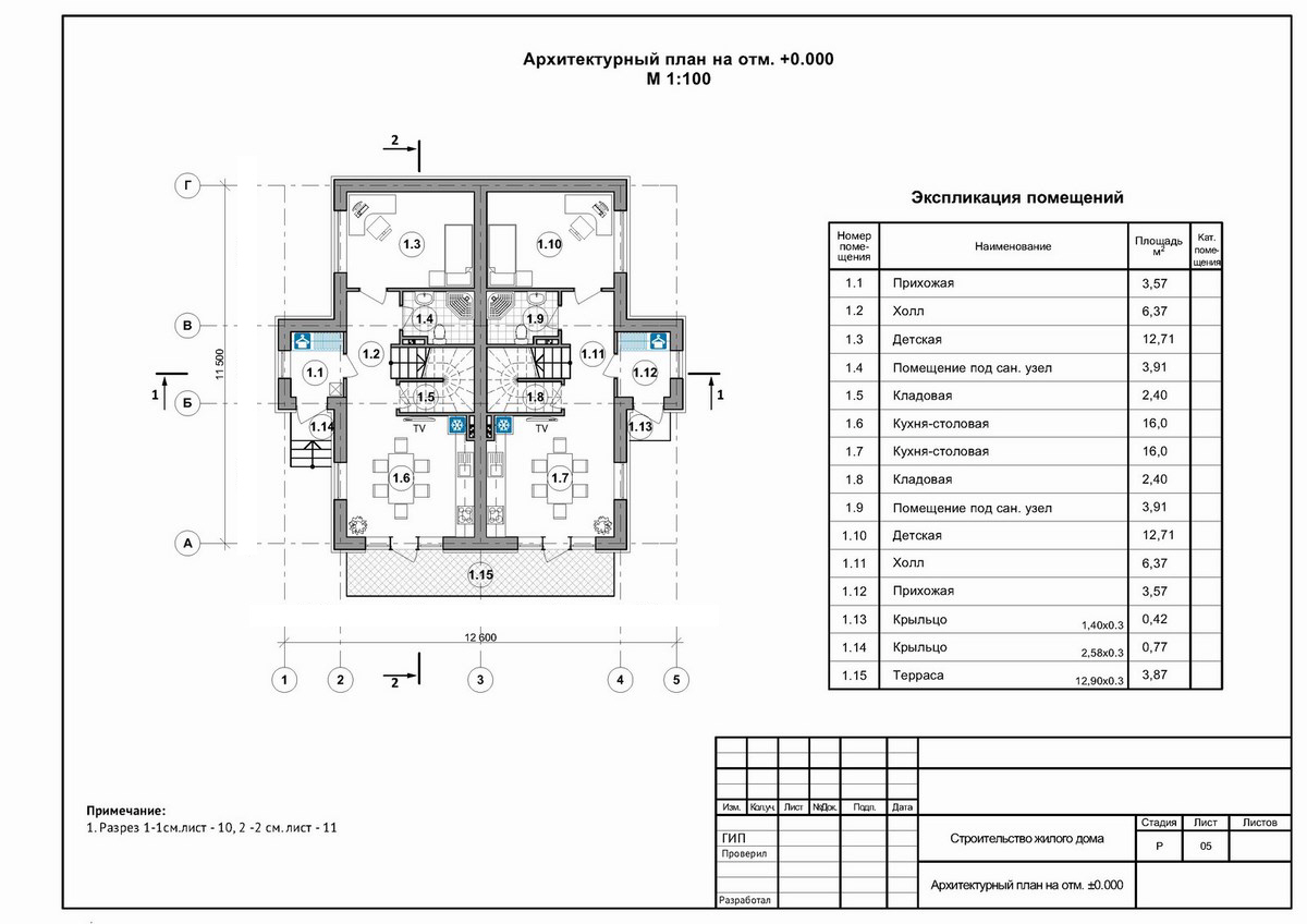
Проектная группа Симферополя ИНстрой представляет проект дома 12 на 12 с мансардой и террасой на 2 семьи для строительства в г. Симферополь, Марьино. Каркасно-каменный монолитный каркас. Несущие наружные стены из известняка-ракушечника. Перегородки - газобетонные блоки, монолитные перекрытия, ленточный монолитный фундамент, кровля - битумная черепица. Рассчитан на сейсмичность 8 баллов.

Наверх