Проект дома, г. Симферополь, ул. Фруктовая.

Проект дома, г. Симферополь, ул. Фруктовая.



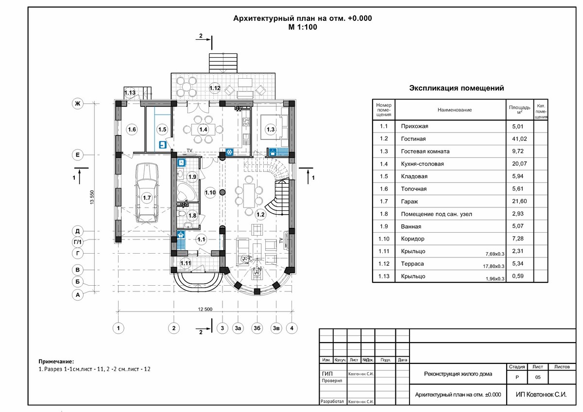
Компания Симферополя ИНстрой представляет проект 2-этажного дома, с гаражом для строительства в г. Симферополь, ул. Фруктовая. Каркасно-каменный монолитный каркас. Несущие наружные стены из известняка-ракушечника. Перегородки - газобетонные блоки, монолитные перекрытия, ленточный монолитный фундамент. Кровля - битумная черепица. Рассчитан на сейсмичность 8 баллов.

Наверх