Проект дома, с. Строгановка, ОК Мартовский, территория СПК, ул. Июльская, Симферопольский район.

Проект дома, с. Строгановка, ОК Мартовский, территория СПК, ул. Июльская, Симферопольский район.



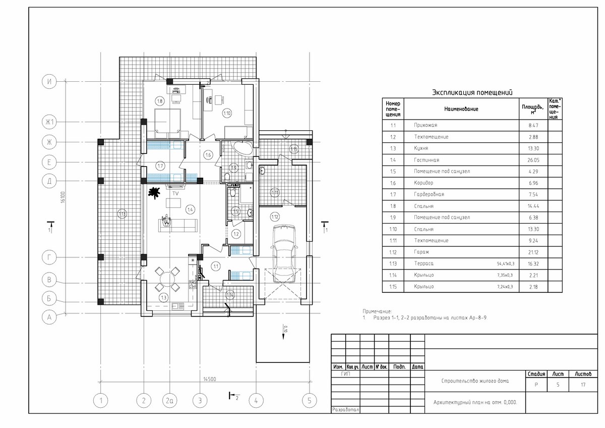
Компания Симферополя ИНстрой представляет проект одноэтажного дома 16 на 14, для строительства в с. Строгановка, ОК Мартовский, территория СПК, ул. Июльская, Симферопольский район. Каркасно-каменный монолитный каркас. Несущие наружные стены из известняка-ракушечника. Перегородки - газобетонные блоки, ленточный монолитный фундамент. Кровля - металлочерепица. Рассчитан на сейсмичность 8 баллов.

Наверх