Проект дома, с. Мирное, ул. Владимира Терехова, Симферопольский район.

Проект дома, с. Мирное, ул. Владимира Терехова, Симферопольский район.



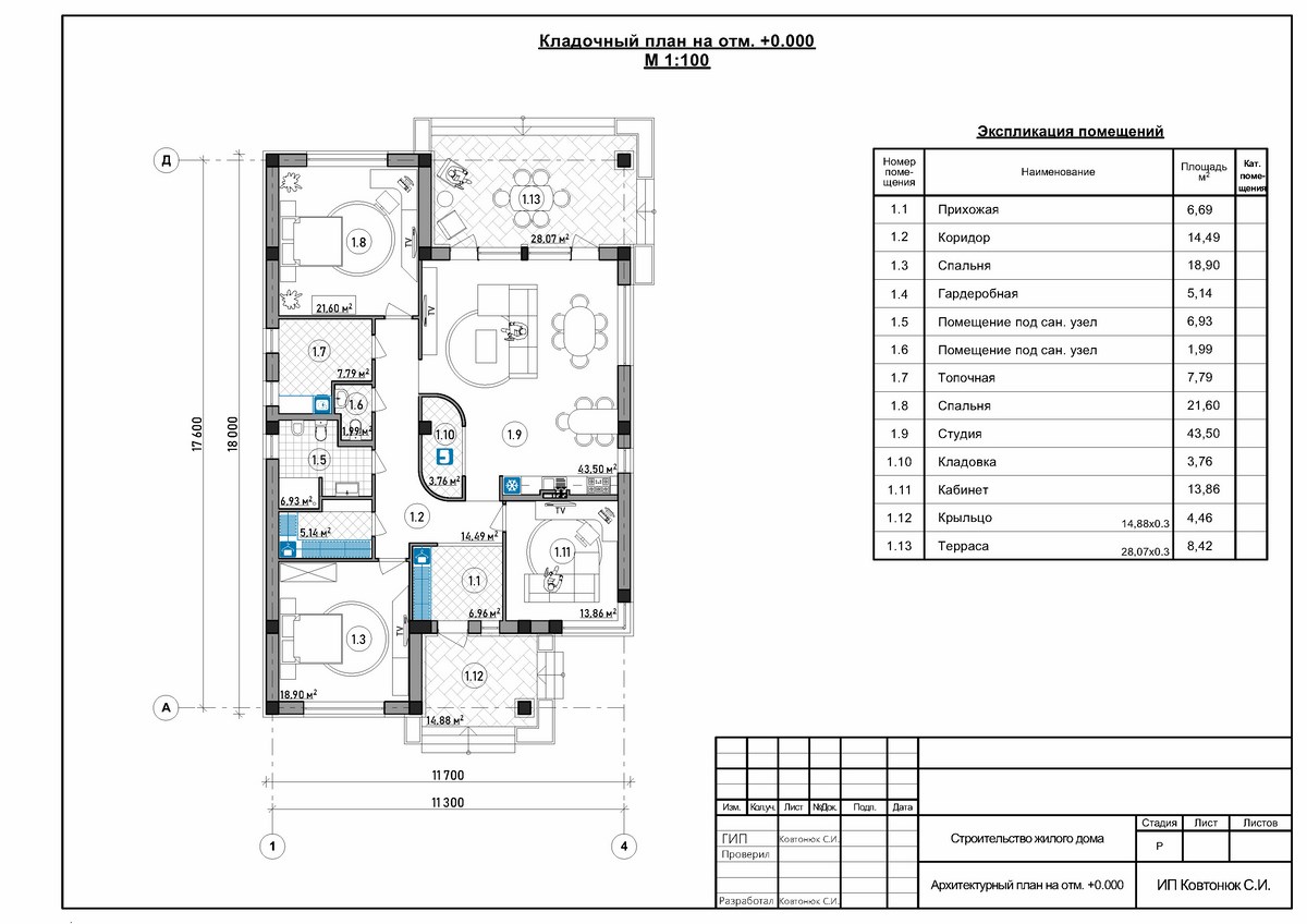
Компания Симферополя ИНстрой представляет проект одноэтажного дома 18 на 12, для строительства в с. Мирное, ул. Владимира Терехова, Симферопольский район. Каркасно-каменный монолитный каркас. Несущие наружные стены из известняка-ракушечника. Перегородки - газобетонные блоки, ленточный монолитный фундамент. Кровля - металлочерепица. Рассчитан на сейсмичность 8 баллов.

Наверх