Проект дома, с. Перевальное, Симферопольский район.

Проект дома, с. Перевальное, Симферопольский район.



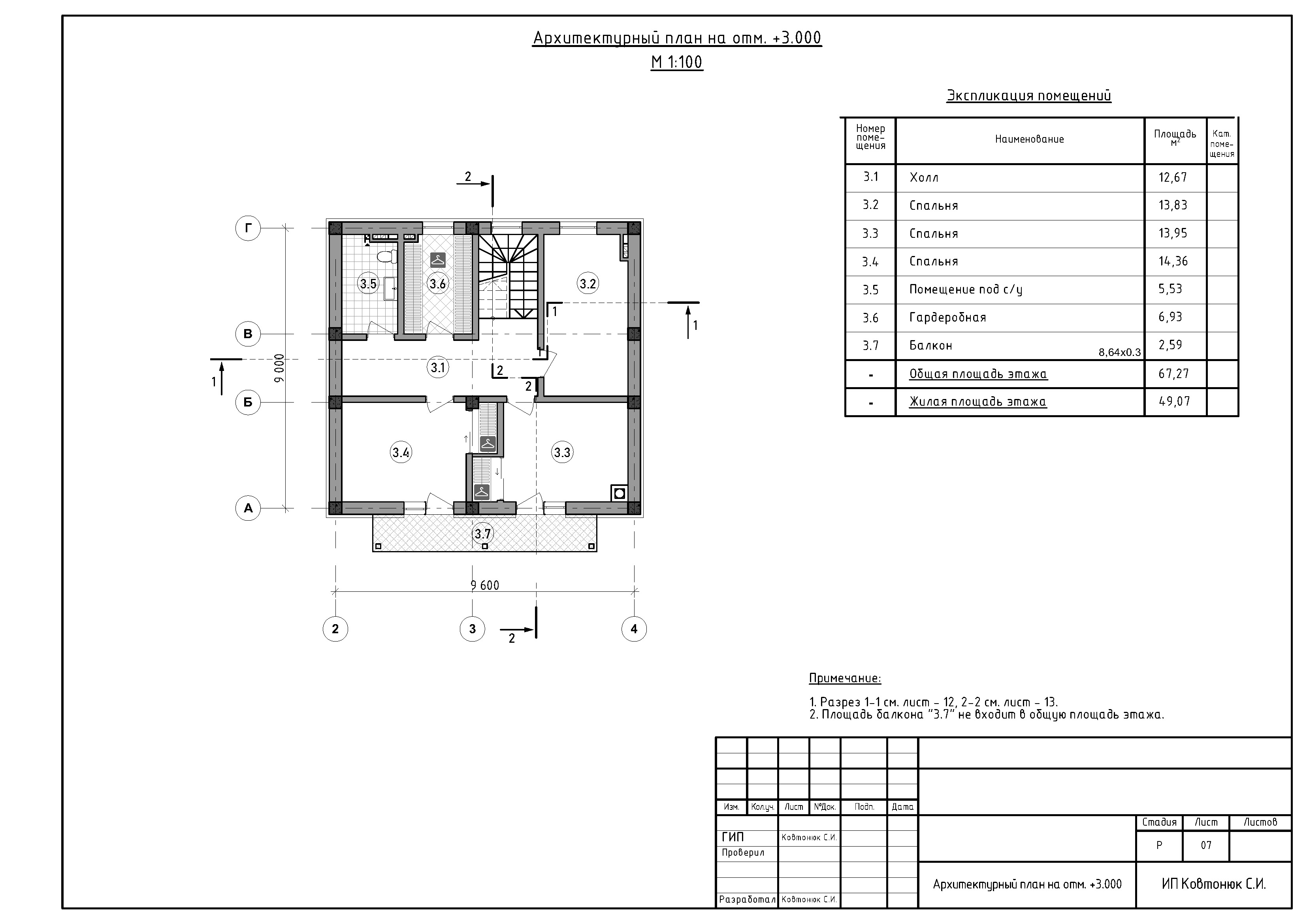
Компания Симферополя ИНстрой представляет проект двухэтажного дома 9 на 14 м, 189 м2 в стиле шале, для строительства в с. Перевальное, Симферопольский район. Каркасно-каменный монолитный каркас. Несущие наружные стены из известняка-ракушечника. Перегородки - газобетонные блоки, монолитные перекрытия, ленточный монолитный фундамент. Кровля - битумная черепица. Рассчитан на сейсмичность 8 баллов.

Наверх