Проект дома, с. Мирное, ул. Славы, Симферопольский район

Проект дома, с. Мирное, ул. Славы, Симферопольский район



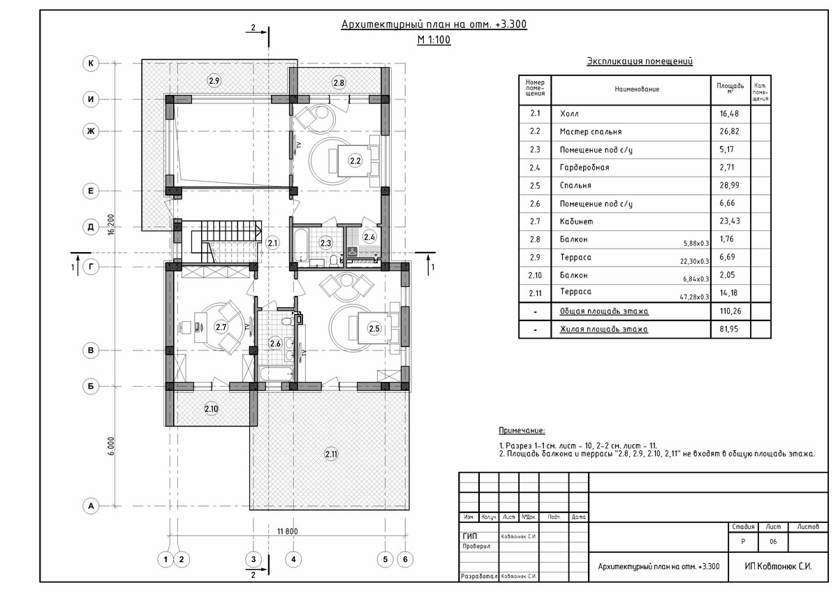
Проектная группа Симферополя ИНстрой представляет проект двухэтажного жилого дома, в современном стиле хай-тек с плоской крышей, 12 на 16 для строительства в с. Мирное, ул. Славы, Симферопольский район. Каркасно-каменный монолитный каркас. Несущие наружные стены из известняка-ракушечника. Перегородки - газобетонные блоки, монолитные перекрытия, ленточный монолитный фундамент. Кровля - плоская, ПВХ мембрана. Рассчитан на сейсмичность 7 баллов.

Наверх