Типовой проект дома 4 (Ар и Кр 50 000 руб.)

Типовой проект дома 4 (Ар и Кр 50 000 руб.)



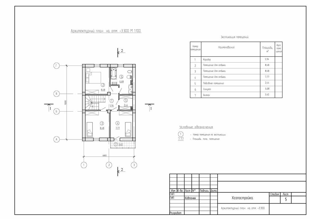
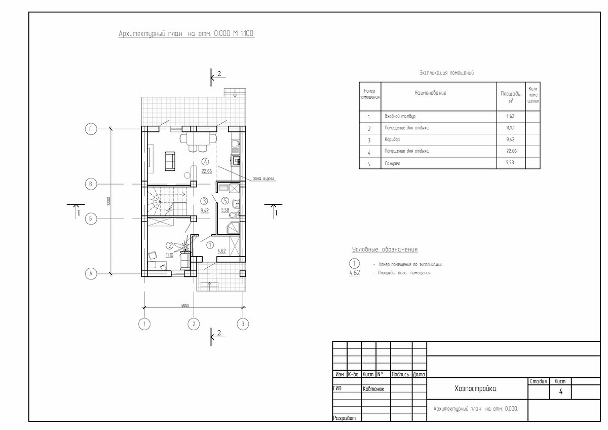
Компания Симферополя ИНстрой представляет готовый проект 2-этажного дома с мансардой, для строительства в любой точке Крыма. Стоимость рабочего проекта архитектурного (Ар) и конструктивного (Кр) разделов 50 000 руб. Каркасно-каменный монолитный каркас. Несущие наружные стены из известняка-ракушечника. Перегородки - газобетонные блоки, монолитные перекрытия, ленточный монолитный фундамент. Кровля - металлочерепица. Рассчитан на сейсмичность 8 баллов.

Наверх