Типовой проект дома 5 (Ар и Кр 50 000 руб.)

Типовой проект дома 5 (Ар и Кр 50 000 руб.)



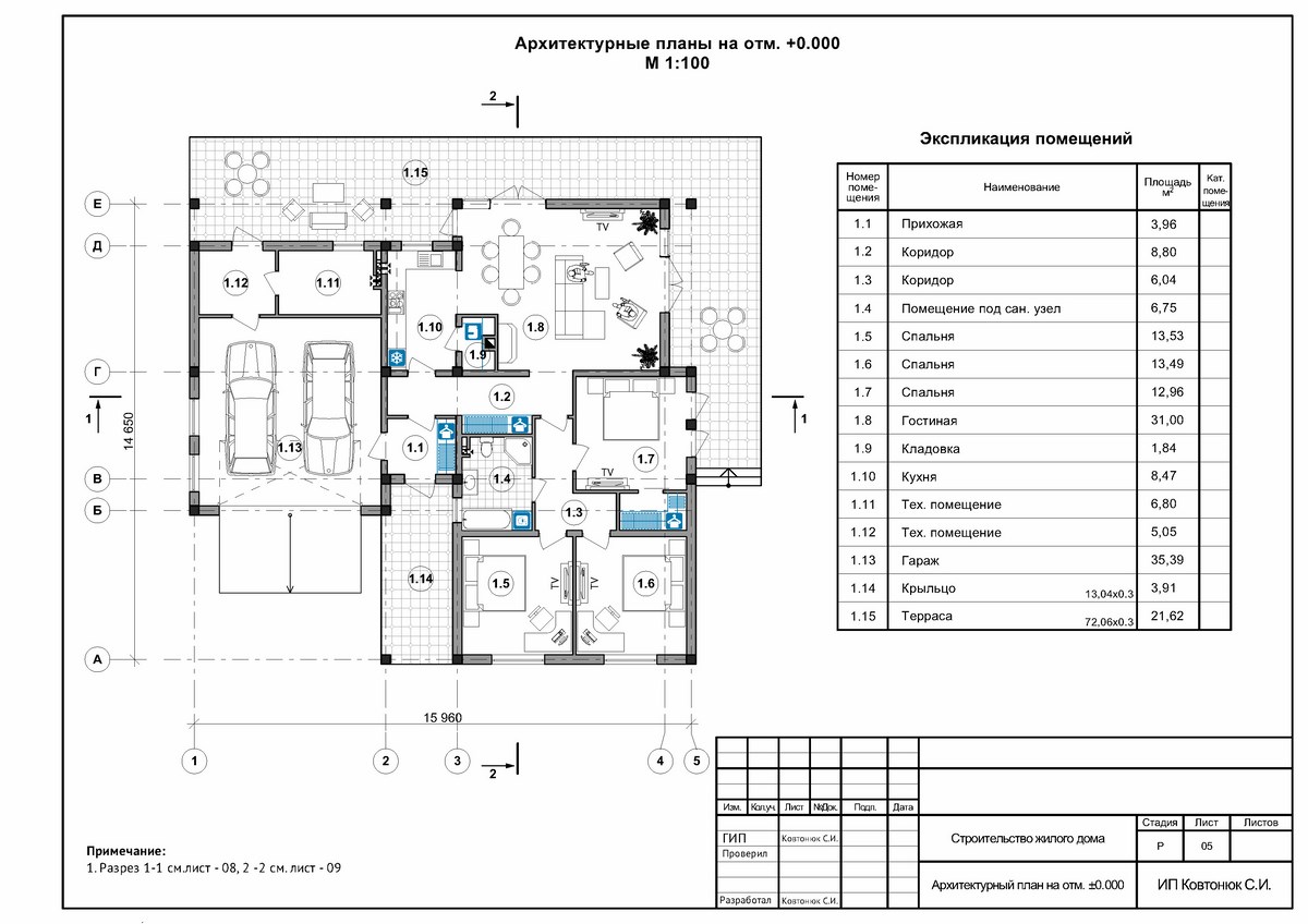
Компания Симферополя ИНстрой представляет готовый проект 1-этажного дома, для строительства в любой точке Крыма. Стоимость рабочего проекта архитектурного (Ар) и конструктивного (Кр) разделов 50 000 руб. Рамный монолитный каркас и несущие наружные стены из газобетона или каркасно-каменный монолитный каркас и несущие наружные стены из известняка ракушечника. Перегородки - газобетонные блоки, ленточный монолитный фундамент. Кровля - битумная черепица. Рассчитан на сейсмичность 8 баллов.

Наверх