Типовой проект дома на две семьи 9 (Ар 25 000 руб.)

Типовой проект дома на две семьи 9 (Ар 25 000 руб.)



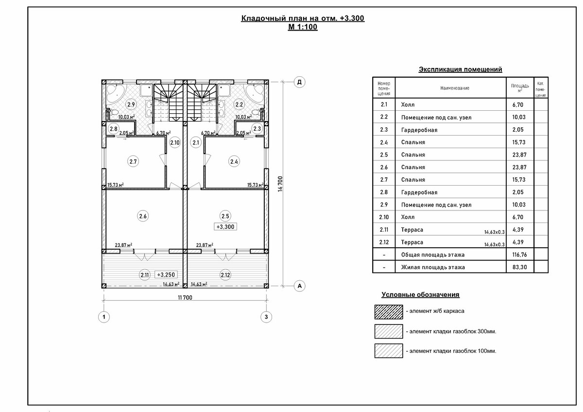
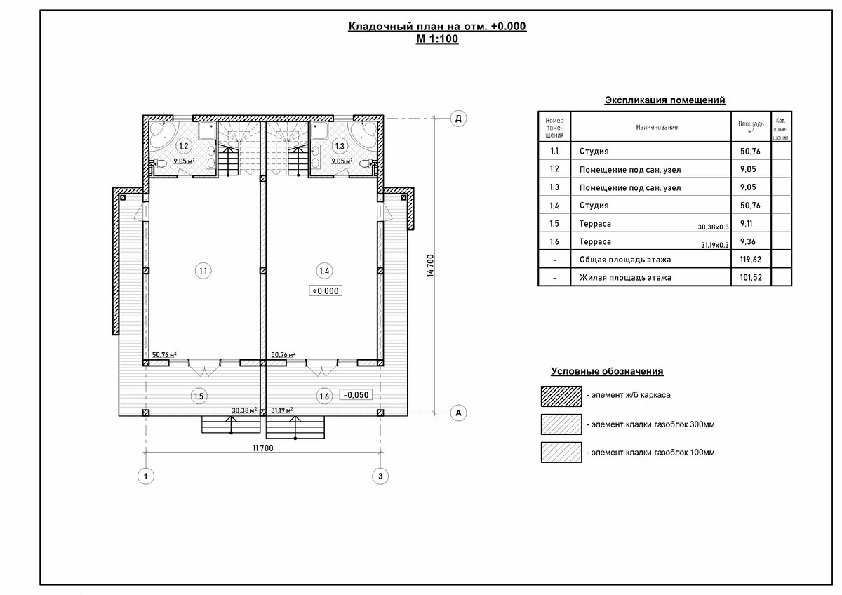
Компания Симферополя ИНстрой представляет готовый проект 2-этажного дома на две семьи, для строительства в любой точке Крыма. Стоимость рабочего проекта архитектурного (Ар) раздела 25 000 руб. Рамный монолитный каркас и несущие наружные стены из газобетона. Перегородки - газобетонные блоки, ленточный монолитный фундамент. Кровля - керамическая черепица. Рассчитан на сейсмичность 8 баллов.

Наверх