Проект 2 (Ар и Кр 50 000руб.)

Проект 2 (Ар и Кр 50 000руб.)



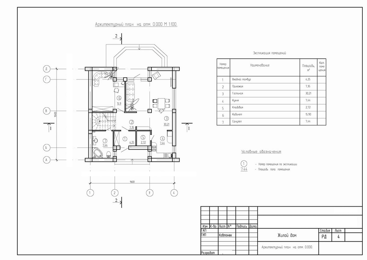
Компания Симферополя ИНстрой представляет готовый проект двухэтажного дома 11 на 10 м, 132 м2, для строительства в любой точке Крыма. Стоимость рабочего проекта архитектурного (Ар) и конструктивного (Кр) разделов 50 000 руб. Каркасно-каменный монолитный каркас. Несущие наружные стены из известняка-ракушечника. Перегородки - газобетонные блоки, монолитные перекрытия, ленточный монолитный фундамент. Кровля - металлочерепица. Рассчитан на сейсмичность 8 баллов.

Наверх